スタッフブログを見ていただきありがとうございます!
今日ご紹介するのはアーデンタワー南堀江。
大阪市西区エリアでお部屋探し中の方には要チェックの物件です。
駅からのアクセスや周辺の雰囲気など、気になるポイントをまとめましたので、ぜひ最後までご覧ください!
\おすすめ物件を今すぐチェック/
アーデンタワー南堀江について
大阪市西区でお部屋探し中の方にぜひチェックしてほしいのがアーデンタワー南堀江です!
西長堀駅から徒歩3分とアクセスの良さが魅力で、通勤や通学にも便利な立地です。
間取りは1Kで、日当たりの良いリビングや充実した設備がそろっているので、初めての一人暮らしや新生活を始めたい方にぴったり!
実際に周辺を歩いてみるとスーパーや飲食店も多く、暮らしやすさを実感できるエリアです。
アーデンタワー南堀江の賃貸情報(募集実績)


| 所在地 | 大阪府大阪市西区南堀江4丁目 |
|---|---|
| 最寄駅 | Osaka Metro千日前線/西長堀駅 徒歩3分 |
| 築年数 | 2007年9月 |
| 参考部屋タイプ | 12階|間取り|44.55㎡ |
| 構造 | 鉄筋コンクリート |
| 参考条件 | 賃料141,000円|管理費15,000円 敷金0ヶ月|礼金0ヶ月 |
アーデンタワー南堀江の主な特徴・設備




新築 /オートロック / デザイナーズ / 防犯カメラ / 宅配BOX / 独立洗面台 / 角部屋 / フローリング / エレベータ / システムキッチン /駐車場有り / バストイレ別 / 2階以上 / 室内洗濯機置き場 / バイク置き場有り /分譲賃貸 / エアコン / 追い焚き / 最上階 / 保証人不要 /浴室乾燥機 / TVモニター付インターフォン /バリアフリー / インターネット対応 / ウォークインクローゼット / インターネット無料 / ガスコンロ対応 / IH対応 / コンロ2口以上 / 都市ガス / 温水洗浄便座 / 敷地内ゴミ置き場 / 駐輪場有り / アパート / マンション / シューズボックス
アーデンタワー南堀江の室内詳細
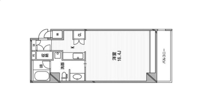
アーデンタワー南堀江の間取り

今回ご紹介するお部屋は、無駄のないレイアウトで使いやすさが魅力です。
リビングや居室の広さがしっかり確保されており、家具の配置もしやすい設計になっています。
水まわりや収納の配置も工夫されているので、日常生活を快適に送れる間取りです。
初めての一人暮らしはもちろん、カップルやご家族にもおすすめできるバランスの良さがあります。
アーデンタワー南堀江の洋室

まず目を引くのは、天井・壁一面に施されたコンクリート打ちっぱなしのデザイン。無機質でありながら冷たさを感じさせず、照明の当たり方や自然光によって表情が変わる、奥行きのある空間に仕上がっています。まさに「住む人のセンスが映える」内装です。
床は明るめの色味でまとめられており、コンクリートとのコントラストが絶妙。重くなりがちなデザイン空間を、軽やかで居心地の良い印象に整えてくれています。家具次第で、インダストリアルにもナチュラルにも振れる懐の深さも魅力です。
大きな窓からはしっかりと自然光が入り、室内は想像以上に明るく開放的。天井が高めな点も相まって、実際の帖数以上の広さを感じさせてくれます。シンプルな空間だからこそ、ベッド・ソファ・デスクなどのレイアウトも自在です。
アーデンタワー南堀江のキッチン

ステンレス天板の美しさ。無駄な装飾を省いたフラットなデザインで、清潔感があり、お手入れのしやすさも抜群。水ハネや汚れもサッと拭くだけで済むので、日常使いのストレスを感じさせません。
コンロは2口ガスコンロを採用。自炊派の方には嬉しいポイントで、同時調理ができるため、効率よく料理が進みます。ワンルームタイプでも「きちんと料理したい」というニーズにしっかり応えてくれる仕様です。
シンクと作業スペースのバランスも良く、まな板や調理器具を置いても余裕のある設計。見た目以上に実用性が高く、料理をする時間そのものが楽しくなりそうです。
アーデンタワー南堀江のバスルーム

一日の疲れを静かにほどいてくれる、上質で落ち着きのあるバスルームです。
まず目を引くのは、シックな印象のブラックカラーの浴槽。空間全体を引き締めつつ、デザイン性の高いホテルライクな雰囲気を演出しています。白を基調とした浴室とのコントラストが美しく、入浴の時間を特別なひとときに変えてくれます。
さらに、浴室内は無駄のないシンプルな設計で、お掃除のしやすさも◎。床は滑りにくく、水はけにも配慮された仕様なので、毎日安心して使えるのも嬉しいポイントです。
また、シャワー水栓やミラーの配置も使いやすく、コンパクトながら窮屈さを感じさせません。デザインだけでなく、実用性もしっかり考えられているのが伝わってきます。
アーデンタワー南堀江の脱衣所

空間に入った瞬間、「おしゃれ」という言葉が自然と浮かぶ、印象的な洗面スペースです。
コンクリート打ちっぱなしの壁と、木目のカウンター、そして艶のあるブラックの床。この異素材の組み合わせが絶妙で、まるでデザイナーズホテルのような洗練された雰囲気を演出しています。生活感が出やすい洗面台まわりを、ここまでスタイリッシュにまとめている点は大きな魅力です。
洗面台はシンプルながら実用性も高く、カウンターに余裕があるため、身支度やスキンケアもゆったり。朝の支度時間さえ、少し気分が上がりそうです。
また、廊下と一体感のある配置により、空間全体が広く感じられるのもポイント。視線が抜けることで、実際以上の開放感が生まれています。
アーデンタワー南堀江のトイレ

限られた空間の中でも、しっかりと「デザイン」と「使いやすさ」を両立させたトイレ空間です。
コンクリート打ちっぱなしの壁が程よいアクセントとなり、シンプルな白の便器とのコントラストがとても印象的。無機質になりすぎず、洗練されたデザイナーズらしさを感じさせてくれます。
上部には便利な収納棚を設置。トイレットペーパーや掃除用品などをすっきりと隠せるため、空間を常に整った状態に保てます。生活感が出やすい場所だからこそ、この配慮は嬉しいポイントです。
アーデンタワー南堀江の収納

見た目以上に頼れる、シンプルで使い勝手の良いクローゼットです。
扉を開けると、無駄のないすっきりとした内部設計。ハンガーパイプ付きで、コートやシャツ、ジャケットなどをまとめて収納でき、衣類をきれいな状態で保てます。高さにも余裕があるため、ロング丈のアイテムも安心です。
下部スペースもしっかり確保されており、収納ボックスやスーツケースなどを置くのにも便利。日常使いのものから季節物まで、用途に応じて柔軟に使えるのが魅力です。
内装は居室と統一感のあるデザインで、扉を開けても生活感が出にくいのも嬉しいポイント。空間全体の世界観を崩さず、さりげなく暮らしを支えてくれます。
アーデンタワー南堀江の周辺環境
- コンビニ 1,088m
- スーパー 1,297m
- 総合病院 819m
- 商店街 890m
- 公園 1,469m
- 大阪西本町郵便局 1,742m
賃貸物件探しでお悩みの方へ
大阪で賃貸物件をお探しの方は、
エーポジションまで!
理想のお部屋探しを徹底サポートします!
