スタッフブログを見ていただきありがとうございます!
今日ご紹介するのはVesta京町堀。
西区エリアでお部屋探し中の方には要チェックの物件です。
駅からのアクセスや周辺の雰囲気など、気になるポイントをまとめましたので、ぜひ最後までご覧ください!
\おすすめ物件を今すぐチェック/
Vesta京町堀について
西区京町堀2丁目でお部屋探し中の方にぜひチェックしてほしいのが【物件名】です!
阿波座駅から徒歩7分とアクセスの良さが魅力で、通勤や通学にも便利な立地です。
間取りは1LDKで、日当たりの良いリビングや充実した設備がそろっているので、初めての同棲や新生活を始めたい方にぴったり!
実際に周辺を歩いてみるとスーパーや飲食店も多く、暮らしやすさを実感できるエリアです。
Vesta京町堀の賃貸情報(募集実績)


| 所在地 | 大阪府西区京町堀2丁目11-23 |
|---|---|
| 最寄駅 | Osaka Metro中央線/阿波座駅 徒歩7分 |
| 築年数 | 2025年6月 |
| 参考部屋タイプ | 6階|間取り|62.91㎡ |
| 構造 | 鉄筋コンクリート |
| 参考条件 | 賃料199,000円|管理費10,000円 敷金0ヶ月|礼金2ヶ月 |
Vesta京町堀の主な特徴・設備




Vesta京町堀の室内詳細
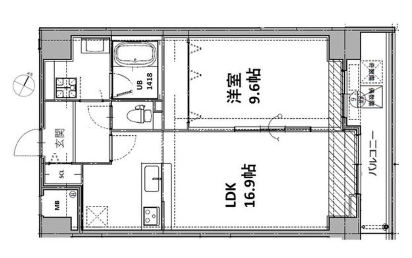
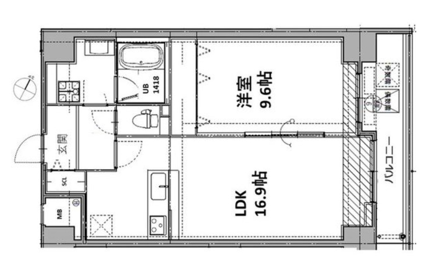
Vesta京町堀の間取り

今回ご紹介するお部屋は、無駄のないレイアウトで使いやすさが魅力です。
リビングや居室の広さがしっかり確保されており、家具の配置もしやすい設計になっています。
水まわりや収納の配置も工夫されているので、日常生活を快適に送れる間取りです。
初めての一人暮らしはもちろん、カップルやご家族にもおすすめできるバランスの良さがあります。
Vesta京町堀の洋室

白を基調にしたフロアと壁が、空間全体に上質な“透明感”を与えていて、どこに立っても柔らかい光に包まれる心地よさがあります。奥までスッと視線が抜けるロングリビングは、開放感たっぷりで、家具をどんなレイアウトにしても映えるのが一目で分かります。
横の洋室へつながるスライドドアも、開ければ広々ワンルーム、閉めれば独立空間として使える万能仕様で、暮らしの幅がぐっと広がるポイントです。
全体に無駄がなく整ったデザインだからこそ、“自分らしい暮らし”をそのまま投影できる、そんな可能性に満ちたお部屋。写真だけでも「ここで住みたい」と思わせる完成度です
Vesta京町堀のキッチン

淡い木目調のキャビネットと真っ白なワークトップが、上品さと清潔感のどちらも兼ね備えていて、見た瞬間に気分が上がります。シンクはゆったりサイズで、鍋やフライパンもストレスなく洗える余裕の広さ。三口ガスコンロにグリルまでしっかり備わっていて、料理の幅が一気に広がります。
そして何より、リビングまで視界がスーッと抜けるこの開放感。家族との会話を楽しみながら、好きな音楽を流しながら、ゆっくりお料理できる「暮らしの中心」になるキッチンです。
毎日の“作業”がちょっとした“楽しみ”に変わりそうな、そんな魅力がぎゅっと詰まった理想のキッチンですね
Vesta京町堀のバスルーム

清潔感あふれるホワイトと、落ち着いたグレートーンのアクセントウォール。この絶妙なコントラストが空間をグッと引き締めつつ、上品でリラックス感のある雰囲気をつくり出しています。
浴槽はしっかりゆったりサイズで、肩までしっかり浸かれる形状。仕事終わりにここでゆっくりお湯に浸かるだけで、一日の疲れがスーッと溶けていきそうです。床の滑りにくいデザインや、お掃除がしやすい素材感など、見た目だけでなく機能面も抜かりなし。
大きめのミラーや収納棚もシンプルでスマート。必要なものがすっきり収まる“ちょうど良さ”が、また暮らしやすさを感じさせます。
Vesta京町堀の脱衣所

大きな三面鏡が放つ柔らかい光が、朝の支度を心地よくしてくれるだけでなく、空間全体をふんわり明るく見せてくれています。シンプルで無駄のない洗面台は、収納力も抜群。日用品をすっきり隠せるから、常に“整った空間”で過ごせるのも嬉しいポイントです。
そのまま続くバスルームへの動線もとても自然で、生活のしやすさをしっかり考えたレイアウト。温かみのあるホワイトと落ち着いたグレーの組み合わせが、忙しい毎日の中でほっと一息つける“自分だけのリセット空間”をつくっています。
毎日のルーティンさえも、ちょっと上質な時間に変えてくれる。そんな魅力が凝縮された美しい脱衣所です
Vesta京町堀のトイレ

まず目を引くのは、奥のネイビーのアクセント。シンプルなホワイト空間に深みのある色が入ることで、ぐっとホテルライクな雰囲気に。たった一面の色使いなのに、こんなにも空間が洗練されるんだと感心してしまうバランスです。
トイレ本体は清潔感あふれるフォルムで、床の明るい木目調と相性抜群。全体のトーンが揃っているので、毎日使う場所でありながら“気持ちが整う場所”としても機能してくれます。さらに壁付けのペーパーホルダーや小窓のスペースも、すっきりしていてとてもスマート。
「必要なものだけを、美しく。」そんなデザイン哲学を感じる、完成度の高いトイレ空間ですね
Vesta京町堀の収納

まさに“収納力×美しさ”をそのまま形にしたような、理想的なクローゼットですね✨
扉を開けた瞬間に感じるのは、とにかく広い!横幅たっぷりのワイドクローゼットだから、季節ごとのアウターから普段使いのトップスまで、まとめてひと目で管理できる贅沢さがあります。
上段の棚はバッグや帽子、収納ボックスを置くのに最適で、下のハンガーポールは長物もしっかり掛けられるゆとりの高さ。無駄のないシンプルな内部構造だからこそ、どんなライフスタイルにもぴったりフィットします。
さらに、白を基調としたインテリアと自然に溶け込むデザインで、開けても閉めても空間がすっきり見えるのが魅力。片付けが“楽になる”だけじゃなく、“片付けたくなる”クローゼットって、実際なかなかないんです。
Vesta京町堀の周辺環境
- スーパー 352m
- コンビニ 76m
- 総合病院 1,037m
- 商店街 2,399m
- ドラッグストア 389m
- 公園 60m
賃貸物件探しでお悩みの方へ
大阪で賃貸物件をお探しの方は、
エーポジションまで!
理想のお部屋探しを徹底サポートします!
